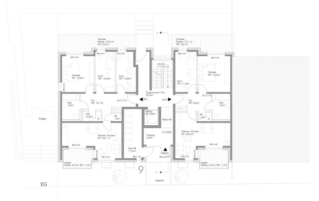
Haus 9 liegt im Süden der Lanstroper Wohnhöfe und flankiert gemeinsam mit Haus 1 einen der Zugänge in den Innenhof. Die Lage des Gebäudes im Süden des Gesamtensembles bedingt, dass es wie auch das benachbarte Haus 10 niedriger geplant wurde.

Die Fassaden werden geprägt über die klare Gliederung der ziegelroten Balkonbrüstungen an den Außenseiten des Gebäudes im Zusammenspiel mit einem verspielten Wechsel von Fenstern mit putzstrukturierten Flächen.
Der zentral eingezogene Hauseingang folgt dem Motiv der Loggien und wird ebenfalls über eine Riemchenfassade betont.
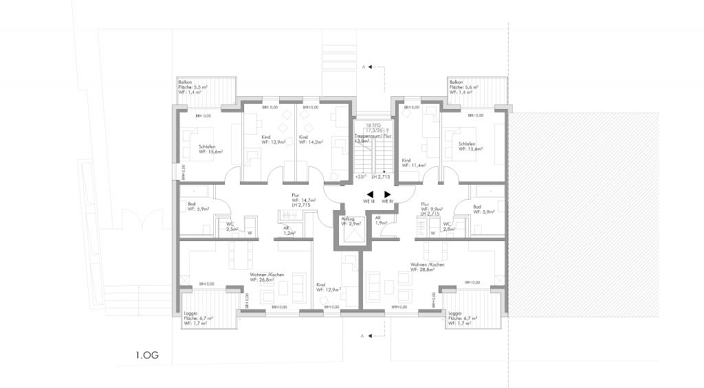
Sechs geförderte barrierefreie Wohnungen verteilen sich auf drei Geschosse. Die Wohnräume orientieren sich zum öffentlichen Raum, die Schlafräume zum Innenhof.
Jeder Wohnung ist sowohl ein Freisitz zum Innenhof als auch einer zur Straße mit Südausrichtung zugeordnet. Gartenseitig eingefügt in die Vor- und Rücksprünge der Fassade, straßenseitig als eingezogene Loggia.
Das Gebäude wird bearbeitet durch Theißen+Partner Architekten

